RHP House

A 1990’s brick veneer project home.

Project aims included:

  • Additional storage

  • Addition of a fourth bedroom

  • Redesign of kitchen dining area and focus on opening up the plan

The main focus was an internal rejuvination without touching the exterior. However as we know, plans change and so the option for a first floor addition was also explored to keep in the back of mind.

  • Option 1: Open plan, new bedroom and dedicated home office. Open plan Entry - Kitchen - Living connection as well as a rearrangenent of the master suite.

  • Option 2: Second storey addition exploration. A sizeable increase in new living, mixed use and bedroom space was created. A significantly larger budget would be required for this option, and whilst not selected, it was explored to show future planning options for the owner.

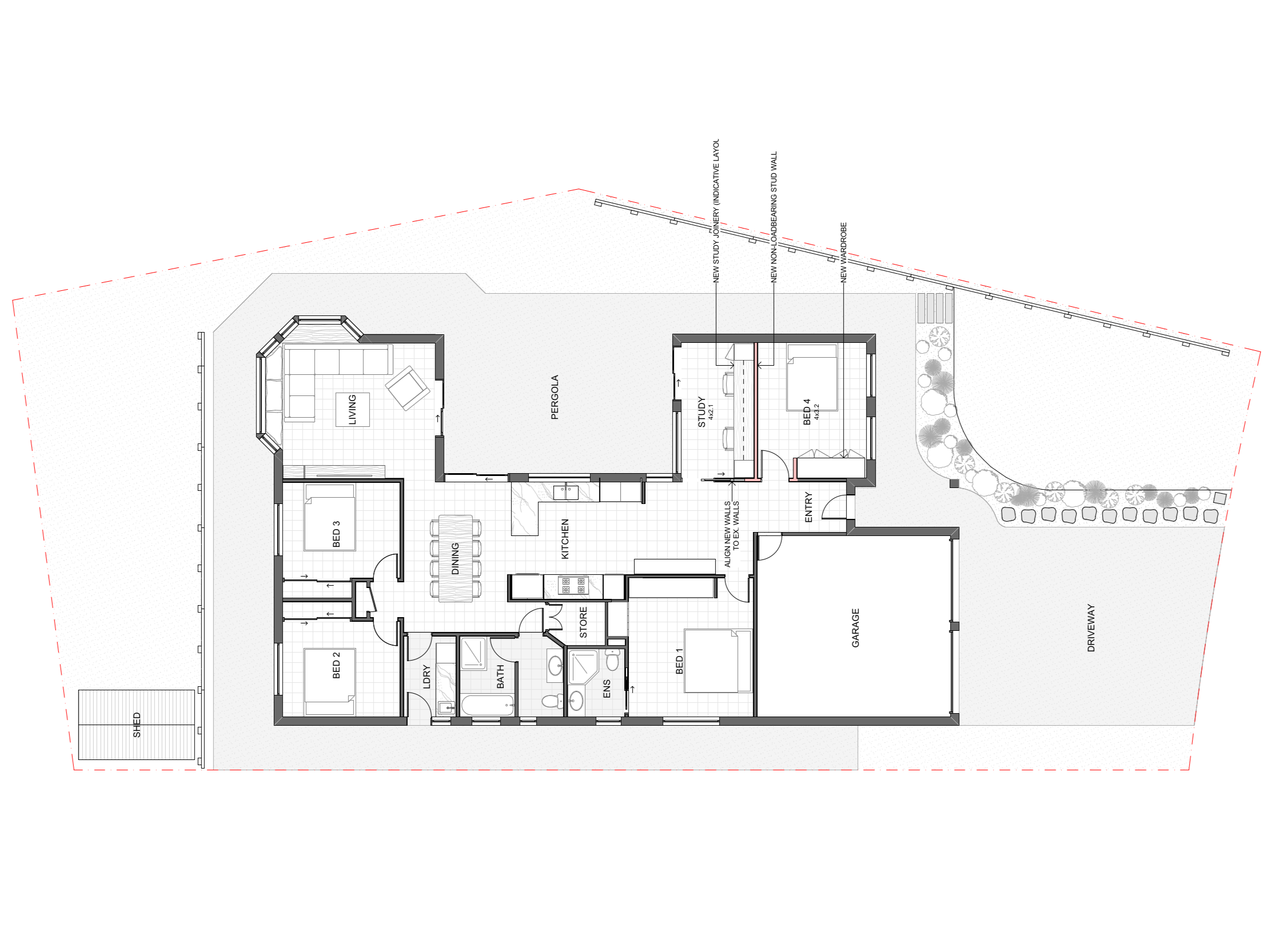
This client ultimately proceeded with Option 1. Construction now complete.

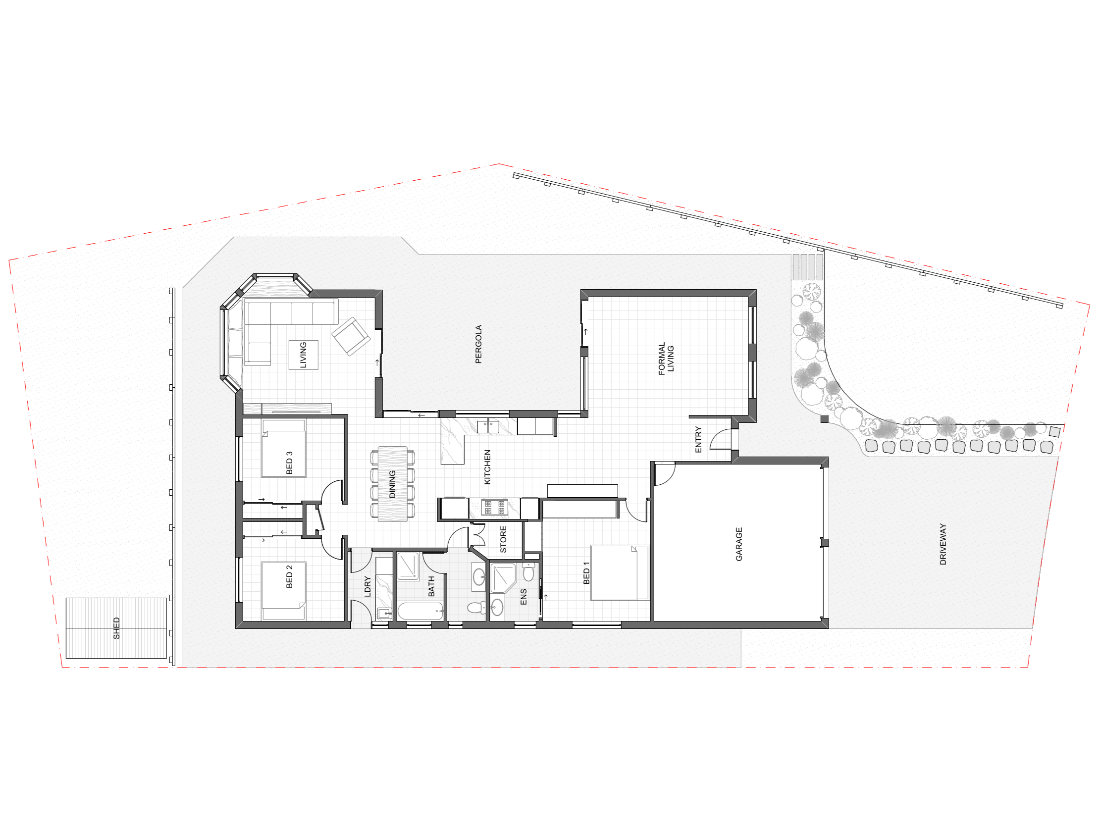
Existing Plan

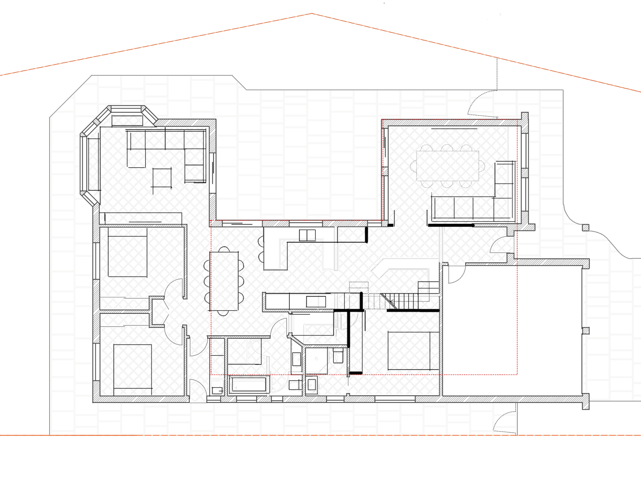
Option 1 - Sketch options example from our 15min online call

Option 2 - Ground

Option 2 - Level 1

Final Plan

Demo Plan

Lighting & Electrical Plan

CDC Documentation for addition of Fourth Bedroom

Previous
Previous

JTP House

Next
Next

CHP House