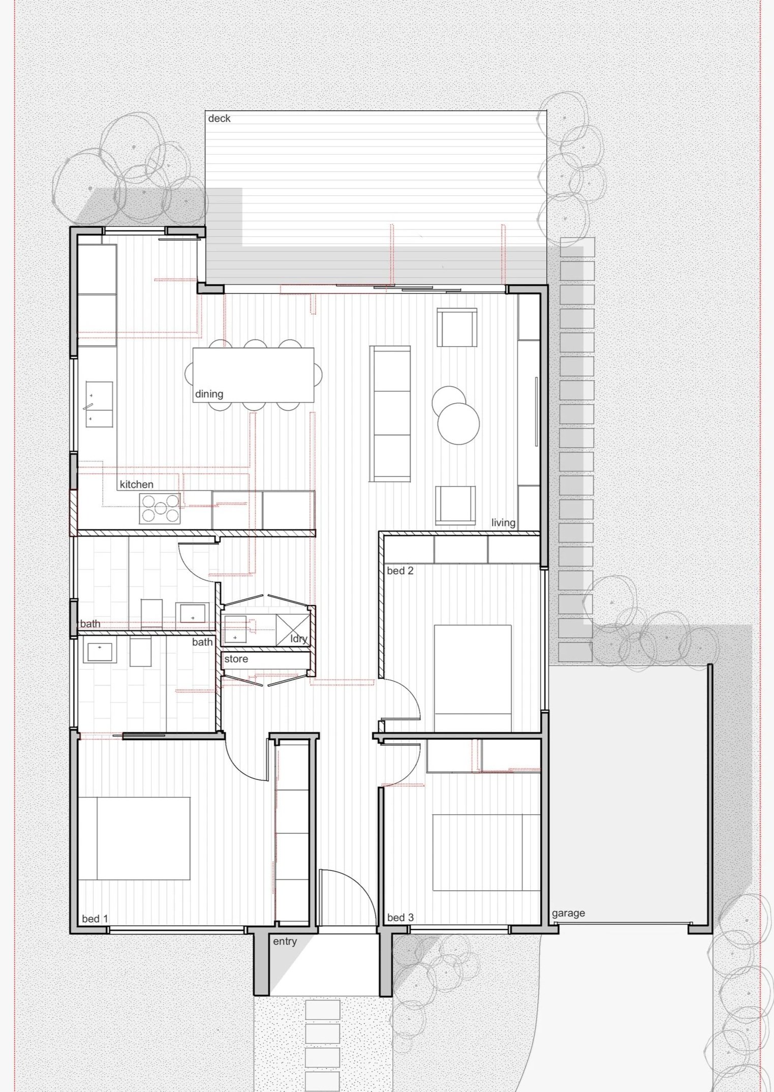
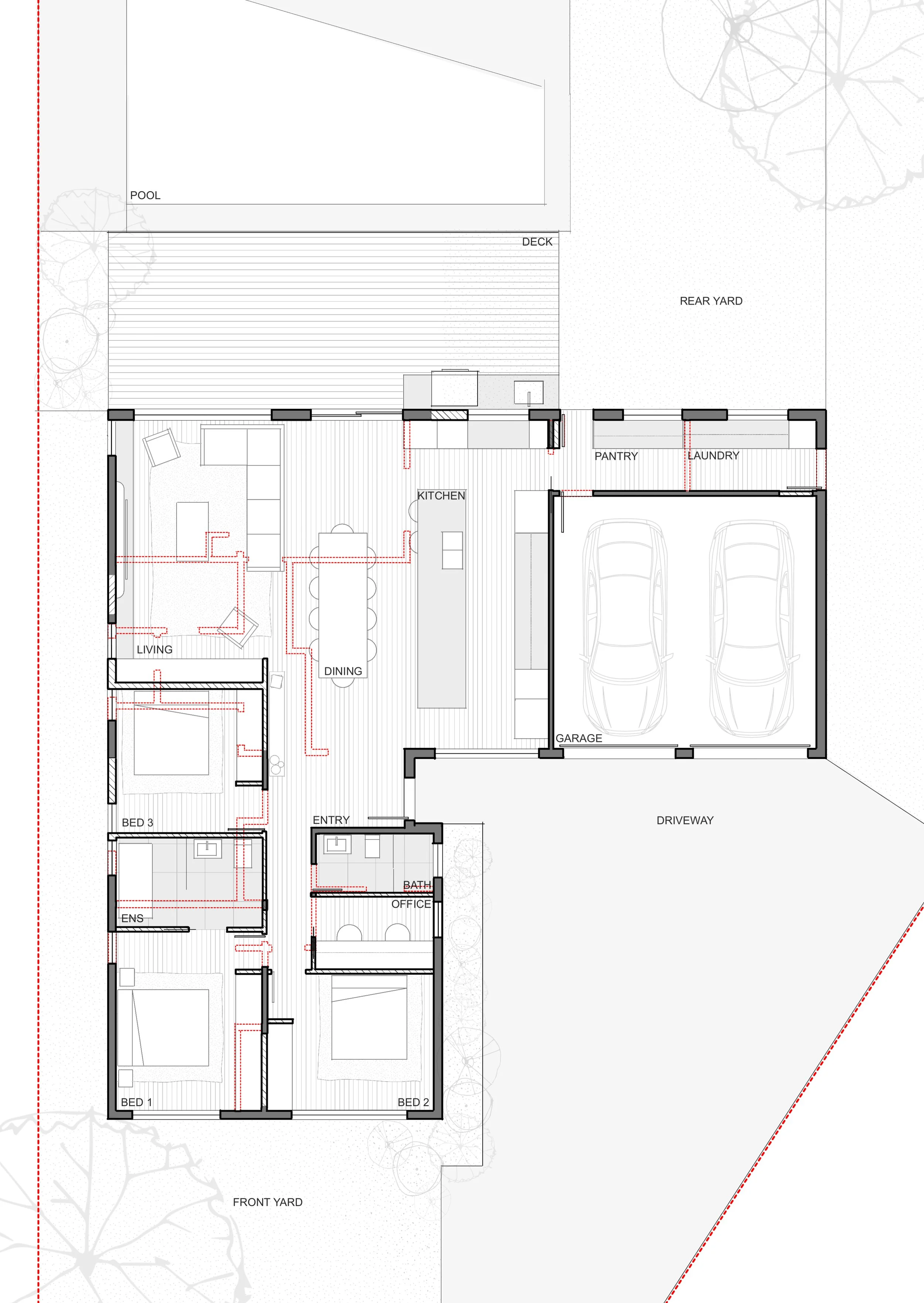
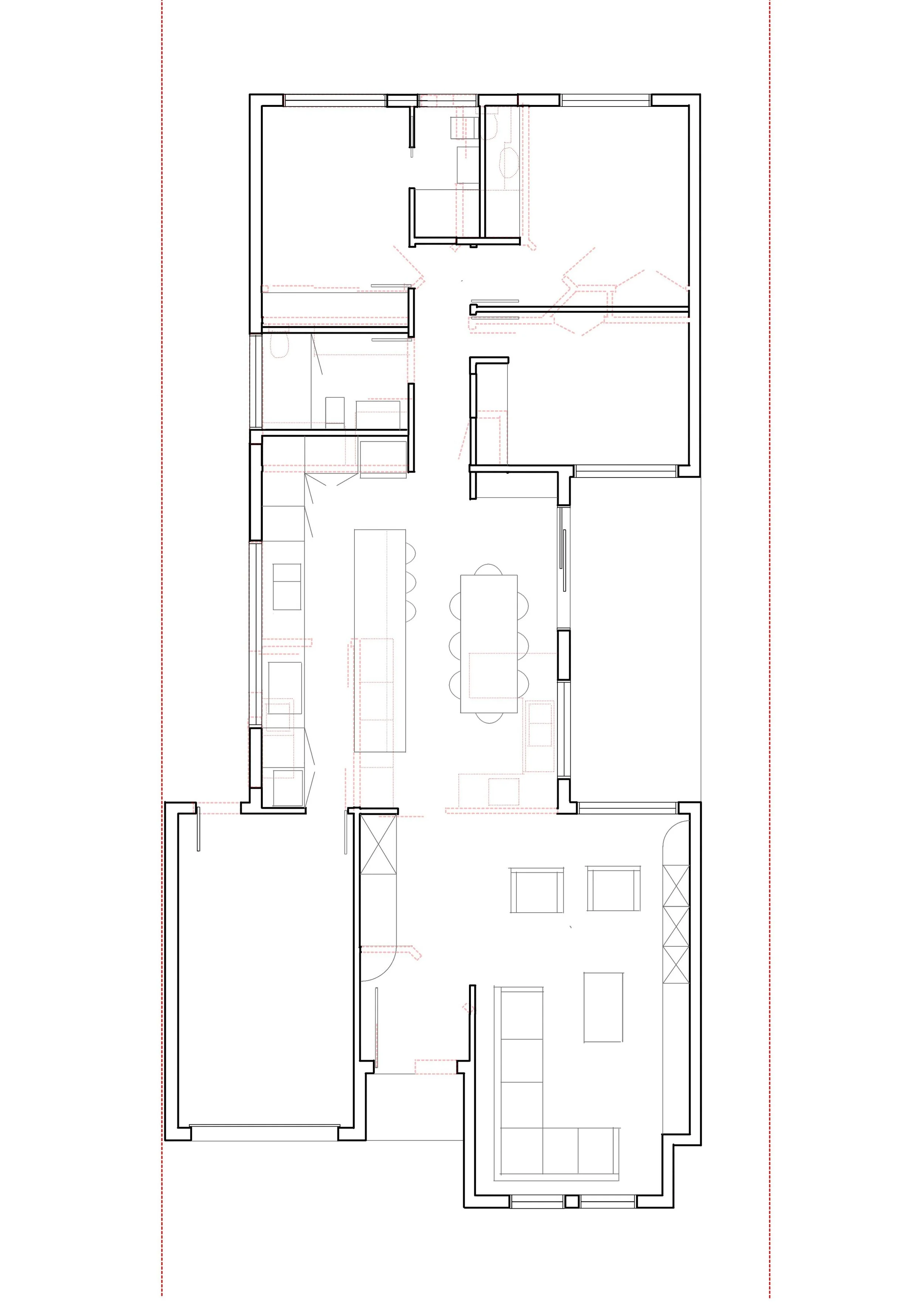
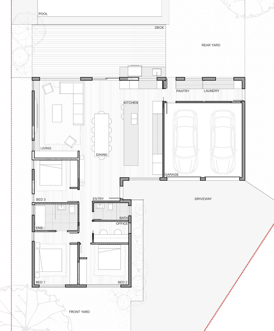
“We want to renovate but dont know where to start!”

“We have a layout but were not confident in our design”

“How do we design our Kitchen? Theres so much detail involved”

For the uncertain home owner, the owner builder, the DIYer or anyone inbetween

We’re here to help you !