Our Approach

Simple. Realistic. Effective.

Our Planning process begins with a careful analysis of your existing home, its spatial arrangement, access to light, landscape, and circulation, in order to uncover its full potential. Through this, we develop clear and considered architectural solutions that maximise value and provide confidence at every stage of the renovation process.

Our Phase 1 Floorplan Review Service is a simple first step for owners who want to understand what’s possible before committing to full architectural or building services. It’s ideal if you’re exploring options for your existing home, feeling unsure where to start, or working with builder already and want clarity on your layout.

In addition to our Floorplan Review Services we also offer additional works captured in Phase 2 and 3 below.

Unsure if we can help? whatever your needs, reach out for a chat!


Our Services

Phase 1: Floorplan Review Service - $990.00

1. Getting Started

Simply fill out your information HERE to get started! We will review your Project Brief as well as your existing floor plan.

2. Lets Chat

We schedule a 20min 1-1 zoom call to run through your project goals and discuss options, red flags, new ideas and so much more.

3. Get to work

Within 5 days we’ll send through 3-5 layout options testing your brief.

You will then be able to review, comment and mark up your your favourite layout option before we have our final 20min zoom call to close out your proposal.

4. Wrap it up

With final comments and discussions in mind we will now prepare and send through your final Proposed Floor Plan which you can now be confident with moving forward on.


Once you have completed the Floor Plan Review Service, the next step involves preparing construction level drawings to allow yourself or your builder to price and plan the project.

Here we will take your Proposed Floor Plan and accurately document using CAD software the following plans:

Phase 2: Construction Ready Service - $650.00

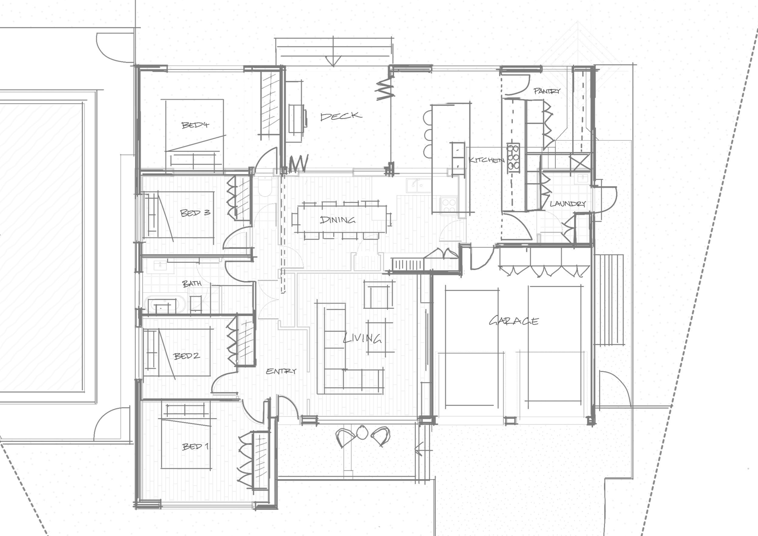
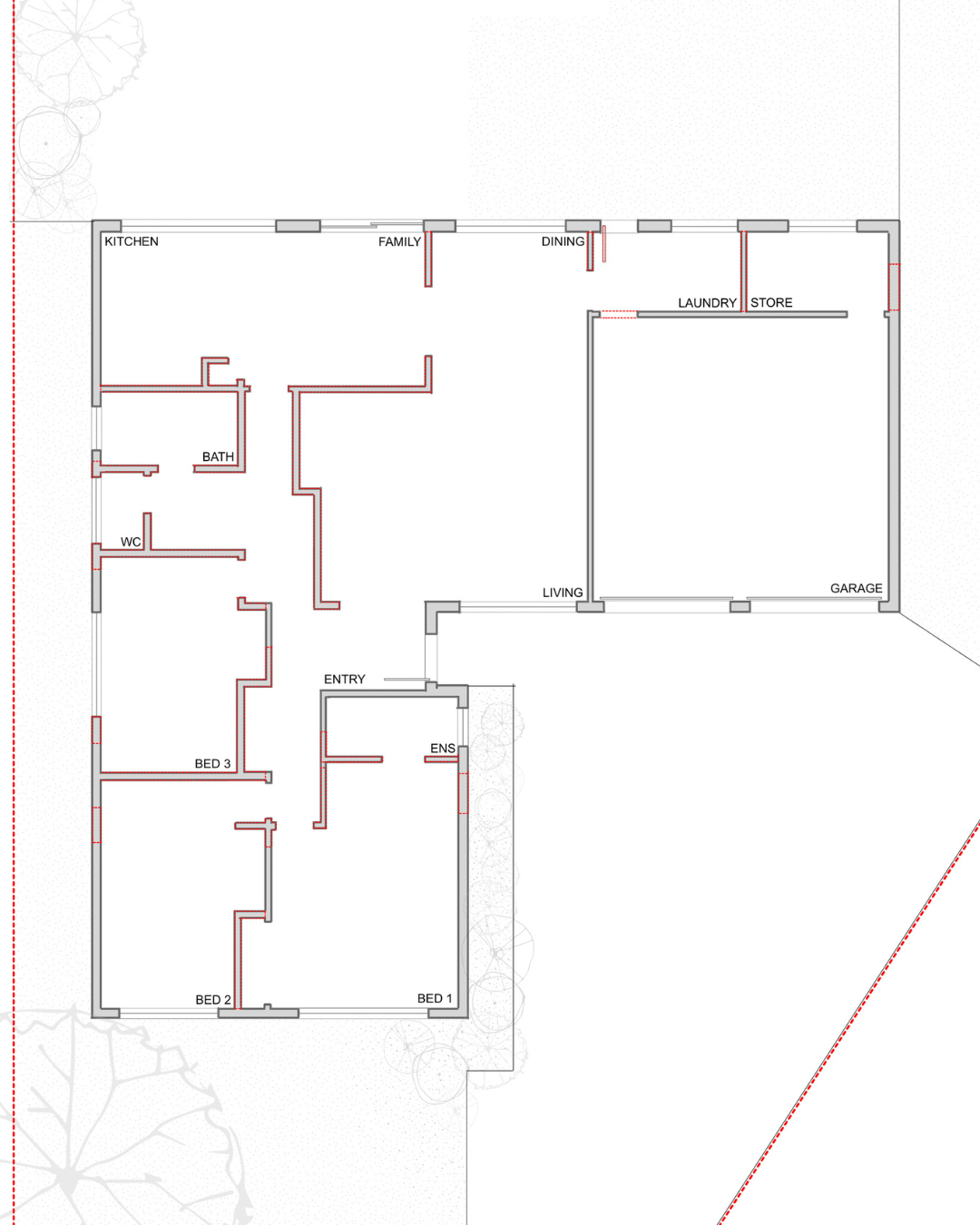
1. Existing Plan

A clean base plan to spark your imagination.

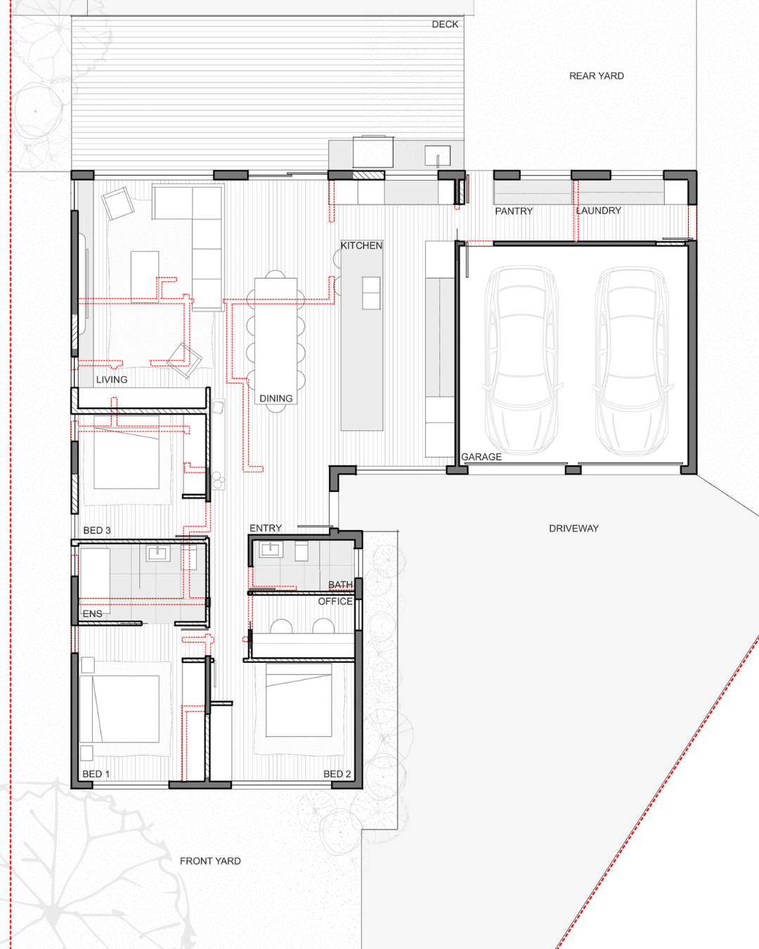
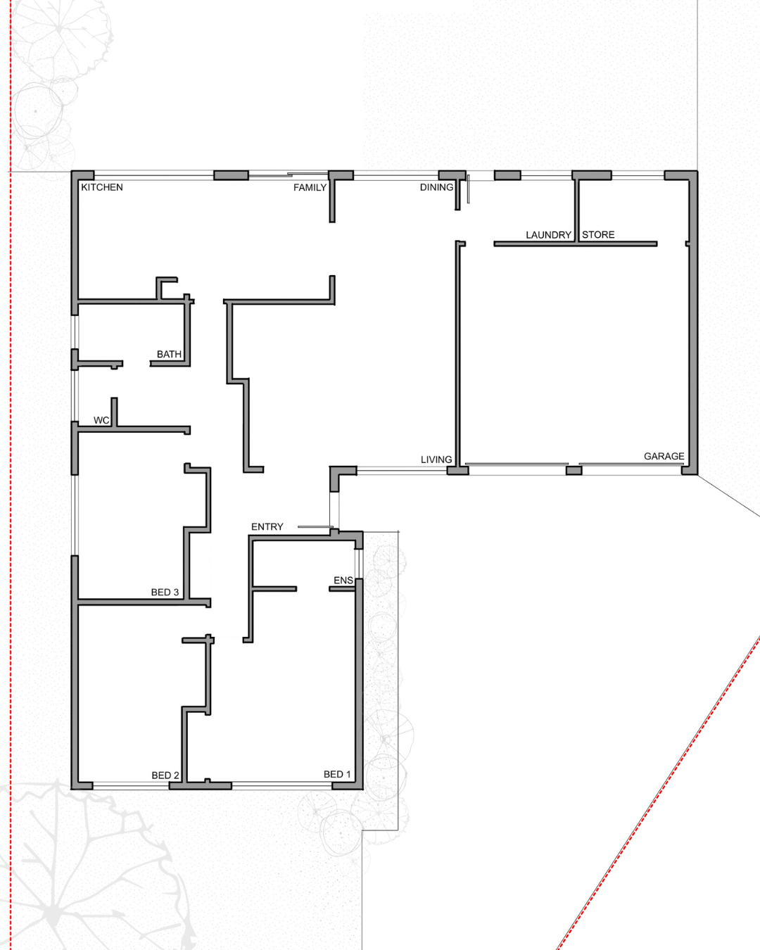
2. Demolition Plan

A clear drawing outlining the extents of works to be demolished and retained, per your final Proposed Floor Plan.

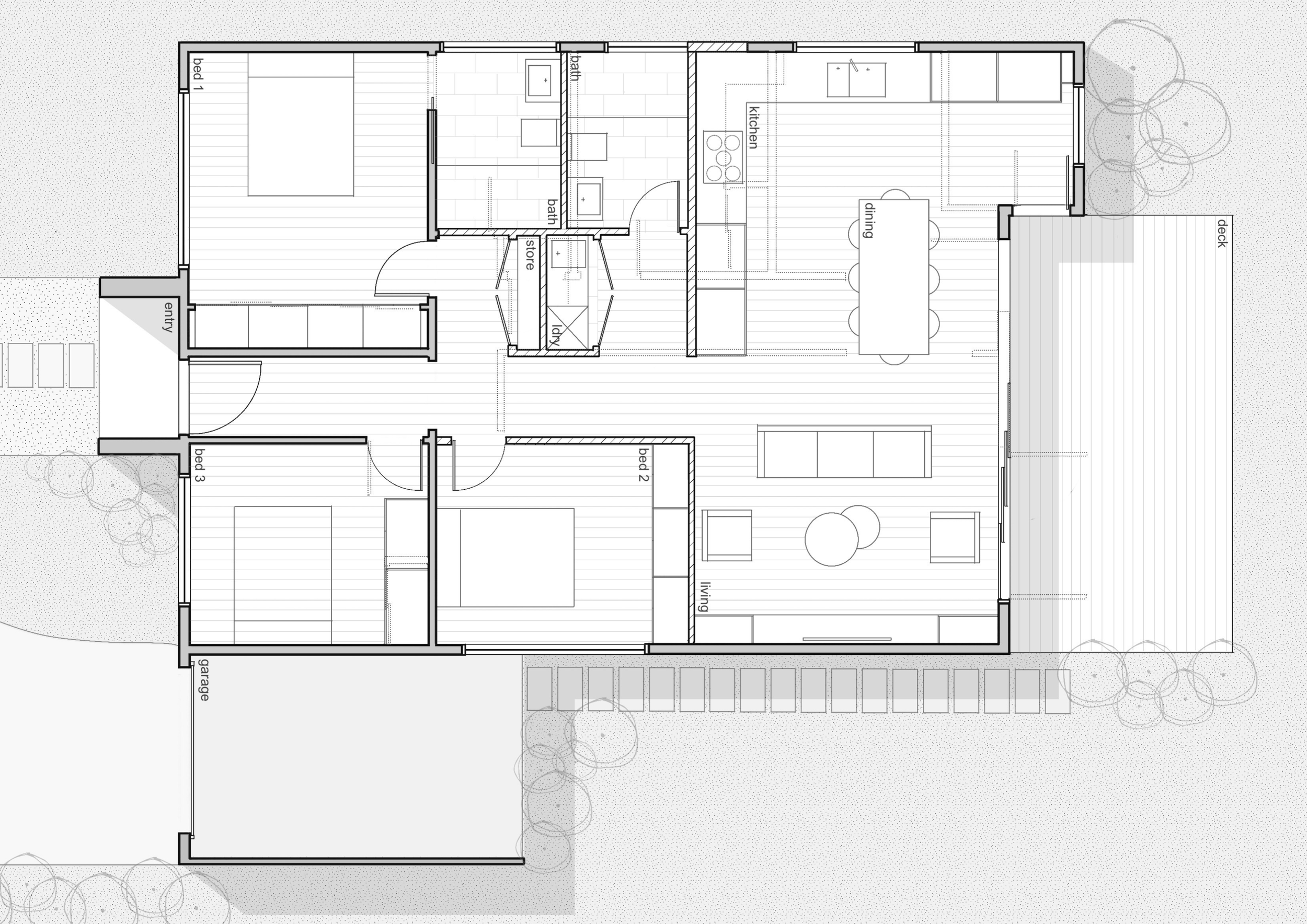
3. Proposed Plan

Of course, the final Proposed Floor Plan showing the complete design and intent.

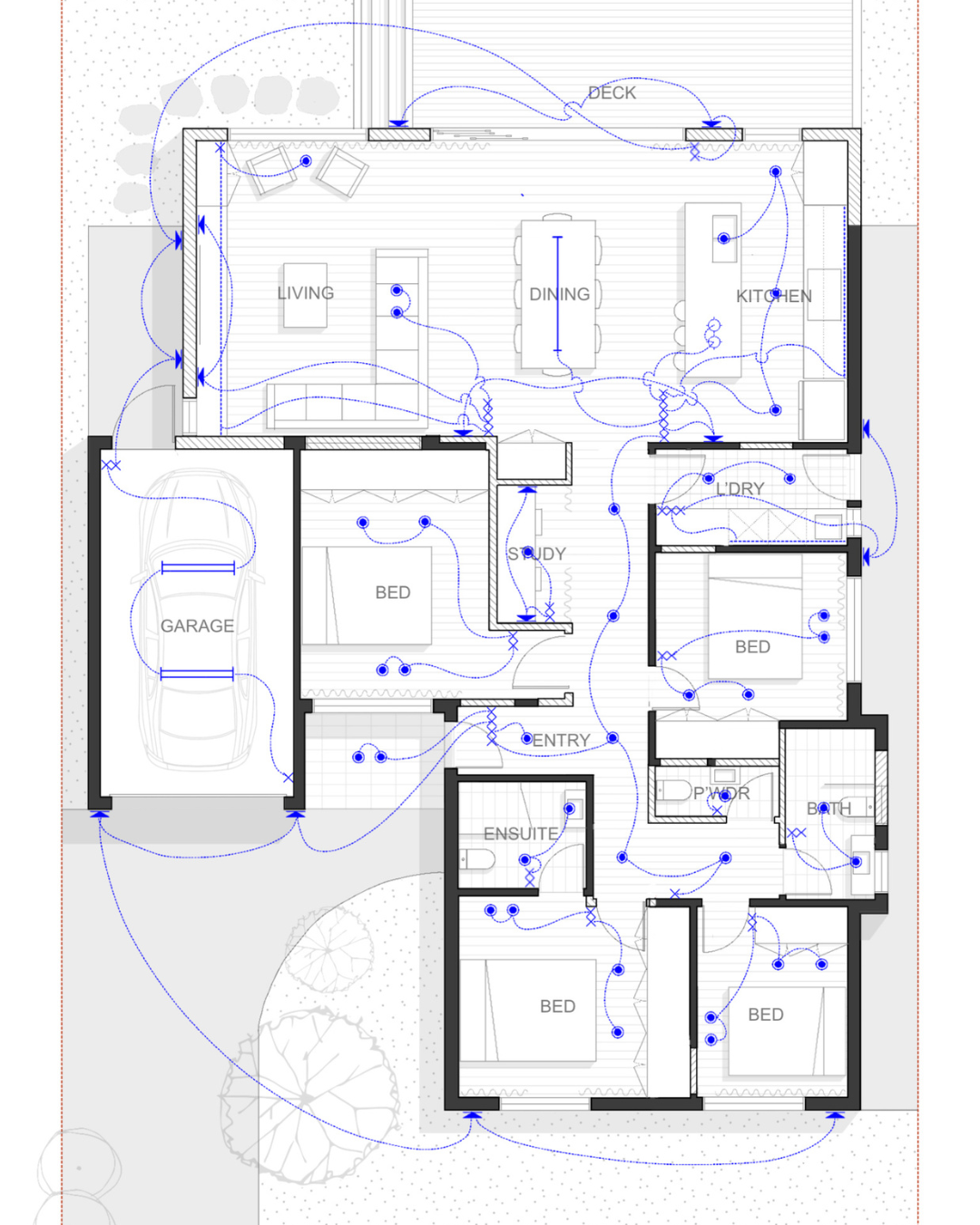
4. Electrical Plan

Always overlooked, the electrical and lighting layout is critical to your homes success. We offer complete electrical and lighting layouts to accompany your Proposed Plan.

$250.00 Add on to Phase 2 inclusions.


The most critical piece in the home is often the centerpiece of daily life, the Kitchen. Which is why we also provide complete Kitchen Documentation to complement our Phase 1 and 2 services. 

This option includes accurately dimensioned and detailed Kitchen Joinery Plans and all Kitchen Elevations ready for your builder or joiner.

Secondly, we also offer complete Bathroom Documentation packages in the same manner at $350.00/per bathroom.



Phase 3: Joinery Service - $450.00

Kitchen Plan

The Basis for your Kitchen layout. Resolved, considered and effective.

Kitchen Elevations

Detailed elevations showing details including applicances, storage, doors/drawers and shelving layouts.

Bathrooms

Additionally we can design and document your complete bathroom layout.


Interested in the Complete Package of Phases 1-3?

We WANT to help your project come to life, so we’ll take a further 10% off our complete service for a limited time only!

Total cost $2090.00$1880.00