CHP House

A late 1990s traditional red brick veneer home, looking to be rejuvinated and brought up to modern living standards.

Project aims included:

  • Adding additional storage

  • Adding additional Bedroom and or refining existing bedrooms/bathrooms

  • Redesign of Kitchen - Living areas with the focus on entertaining and outdoor connection

The projects various options included two destinct routes which the client considered and ultimately selected.

  • Option 1: Working with the existing outer skin to reduce project cost, with the compromise of not being able to add a fourth bedroom whilst still refining the existing space to maximise the potential of the existing structure.

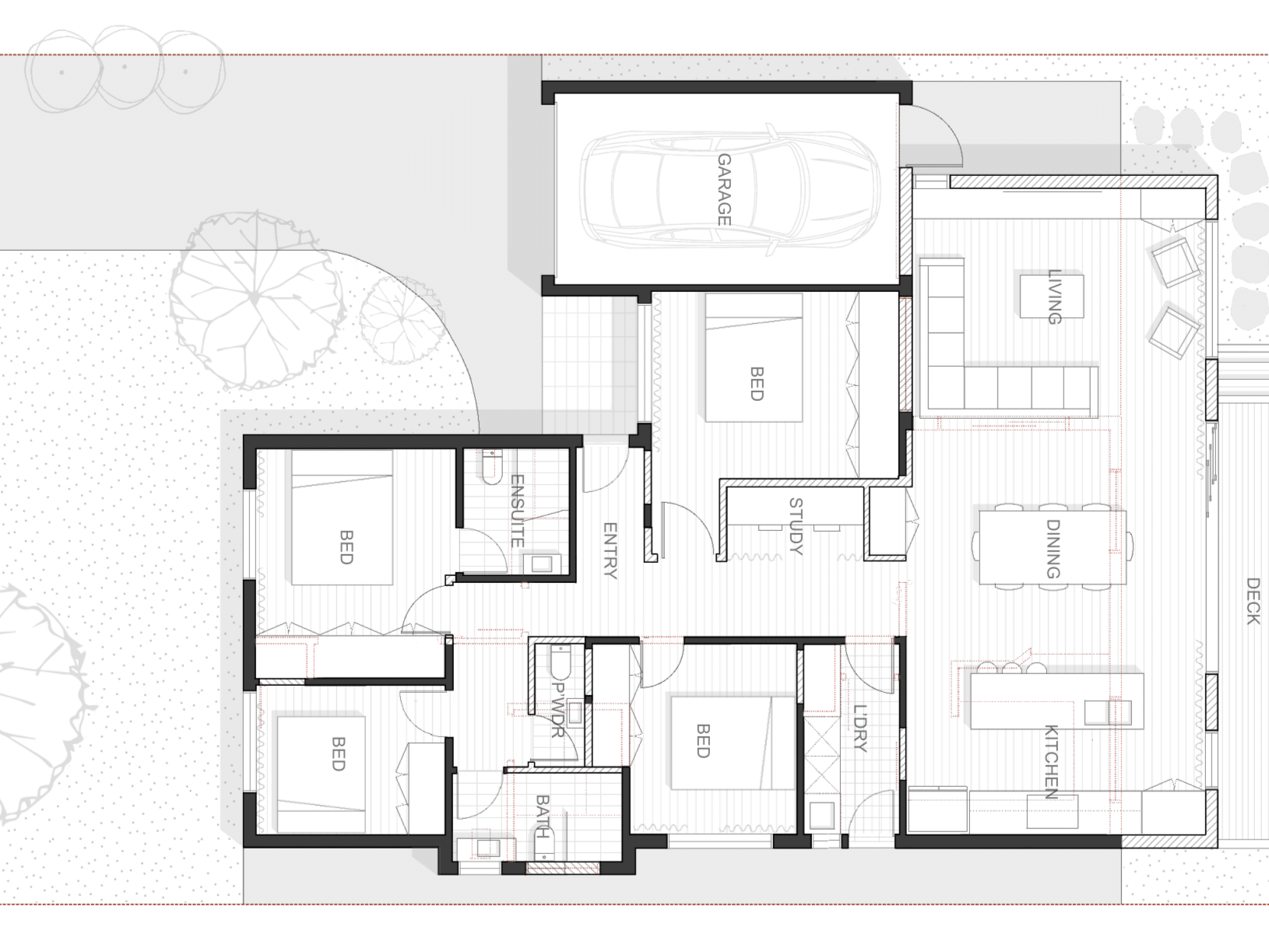
  • Option 3 (Final Plan): Extension of the existing home to the rear to significantly increase the Kitchen Living zone and provide a larger outdoor entertaining space. As well as also refining the remaining front portion of the home.

This client was able to take our final plan to their previously engaged builder to review and assess pricing and staging options.

Existing Plan

Option 1

Option 2

Final Plan

Previous
Previous

RHP House

Next
Next

DWG House