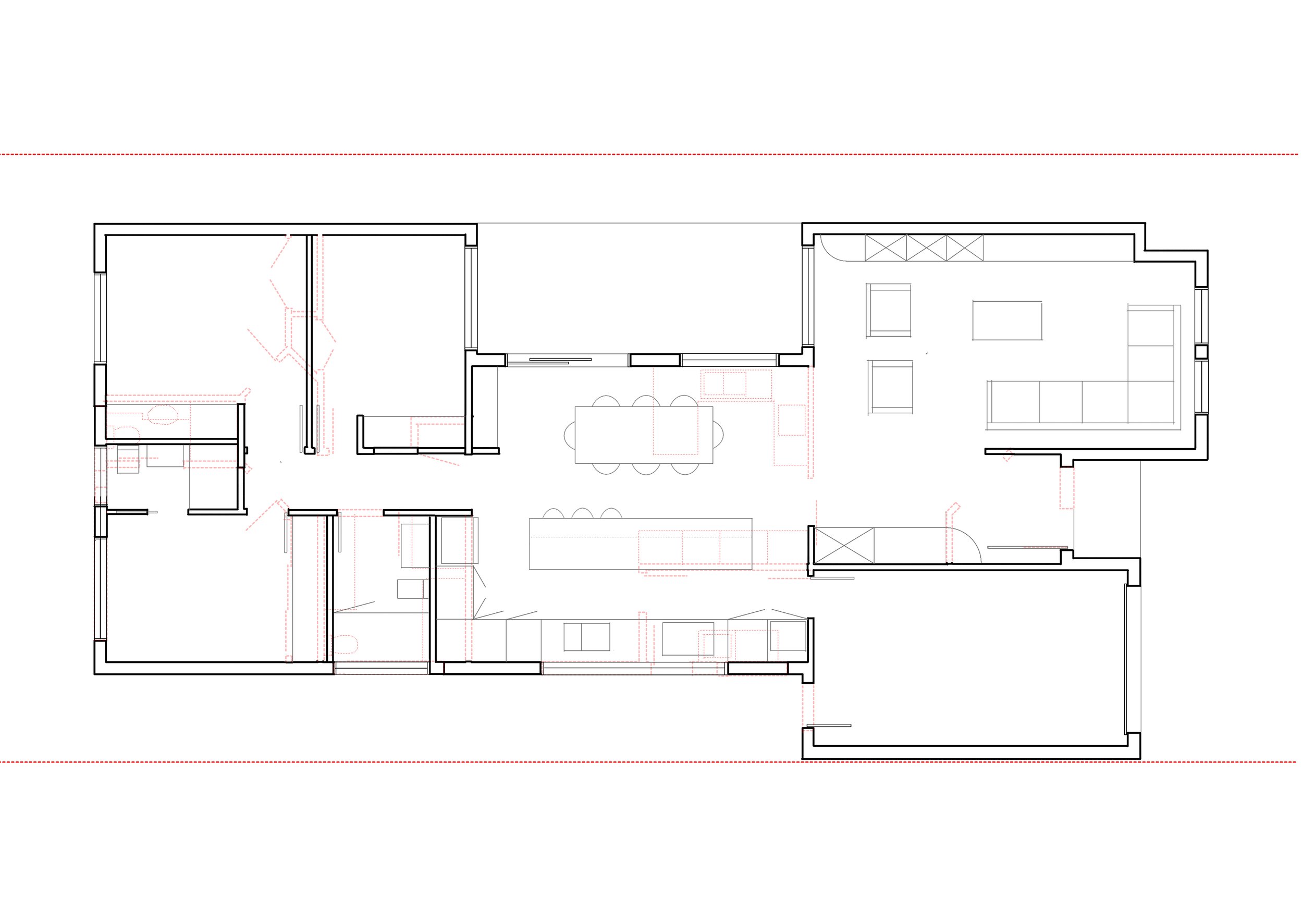
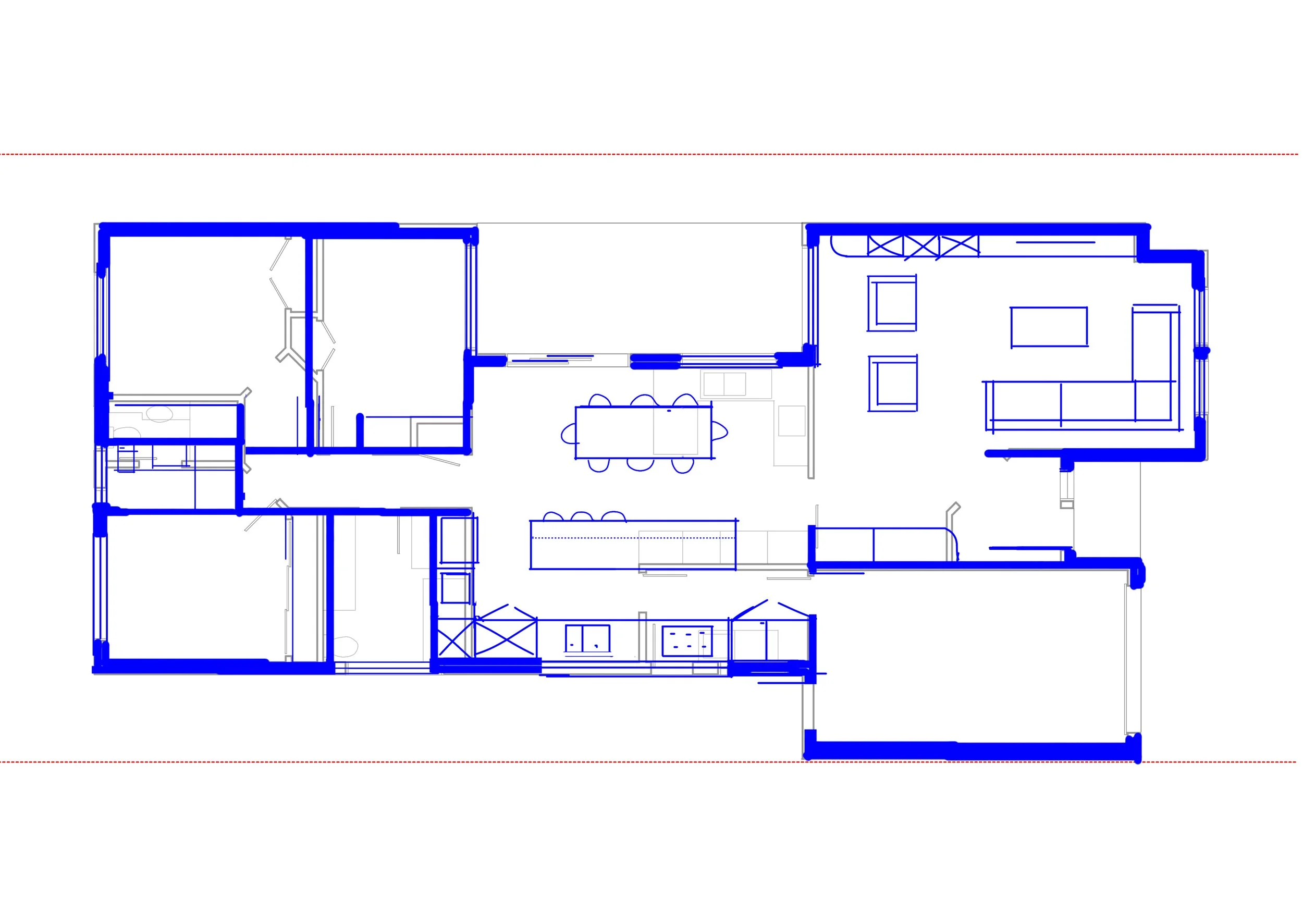
DWG House
A 1990’s brick veneer project home.
Project aims included:
Improve the poor circulation space around bedrooms and reduce wasted space
Increrase wardrove storage
Create a modern kitchen space as the centre piece of the home
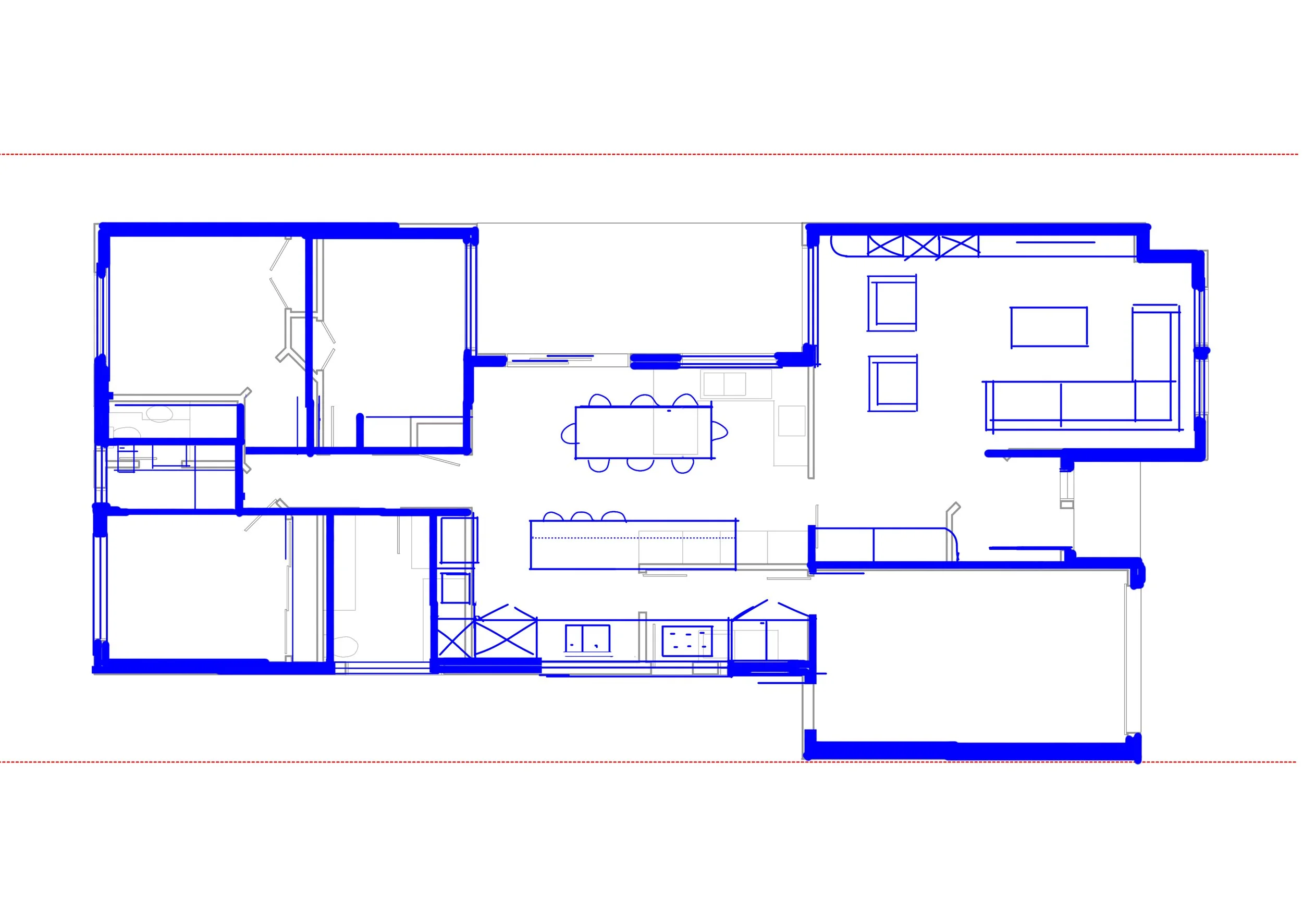
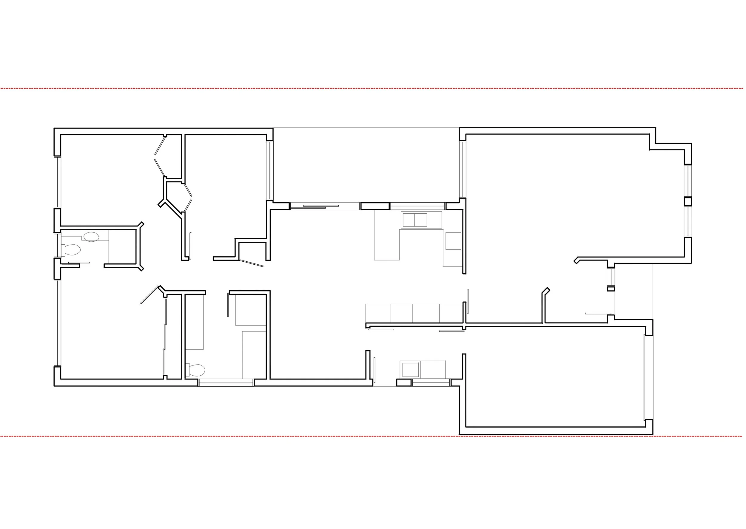
A 1990’s brick veneer project home.
Project aims included:
Improve the poor circulation space around bedrooms and reduce wasted space
Increrase wardrove storage
Create a modern kitchen space as the centre piece of the home