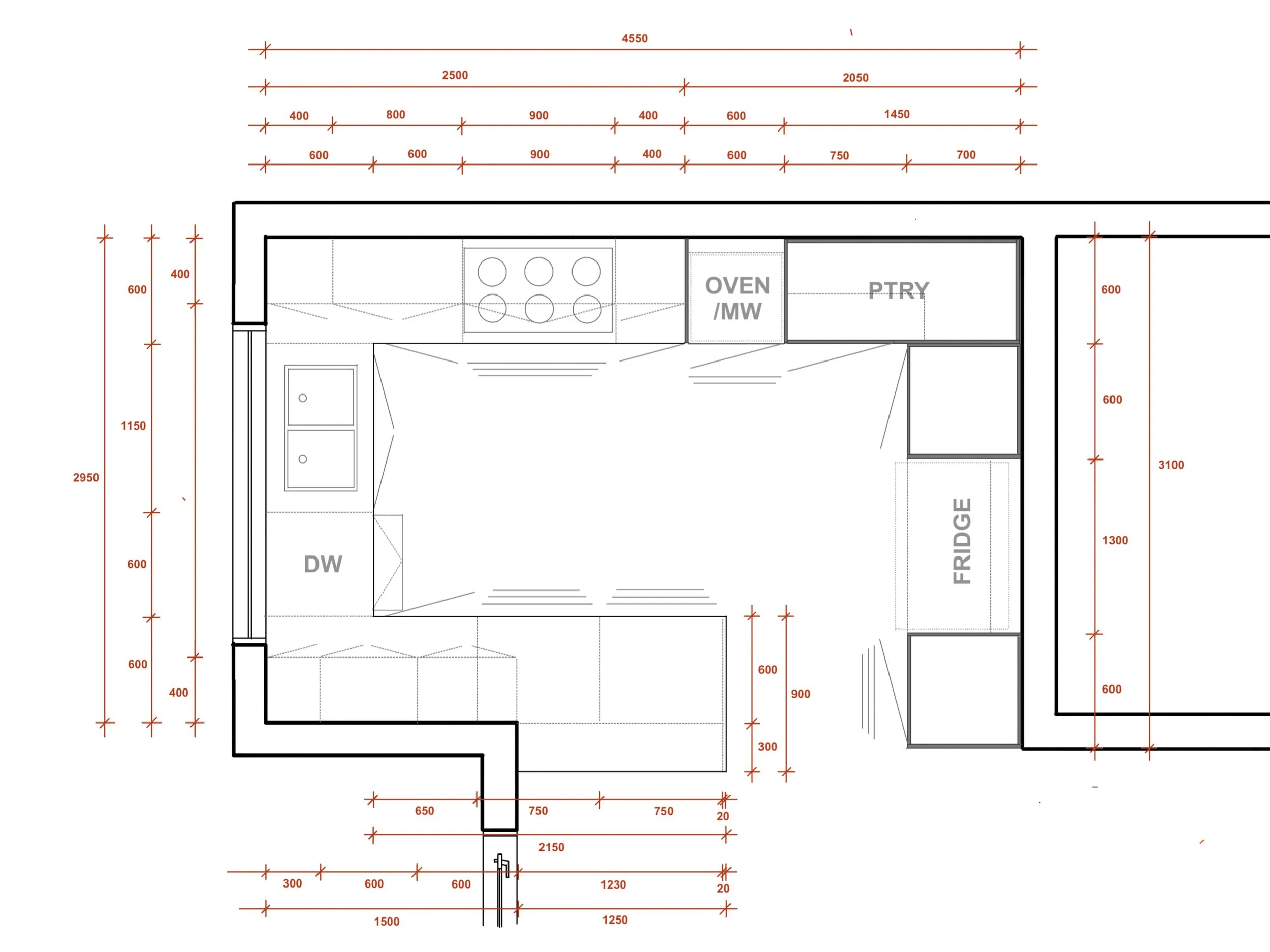
RGH House
A small internal renovation including new kitchen layout, fixtures and cabinetry.
An increase in storage, modern appliances and future proofing were the aim. Project Underway Q1 2026.
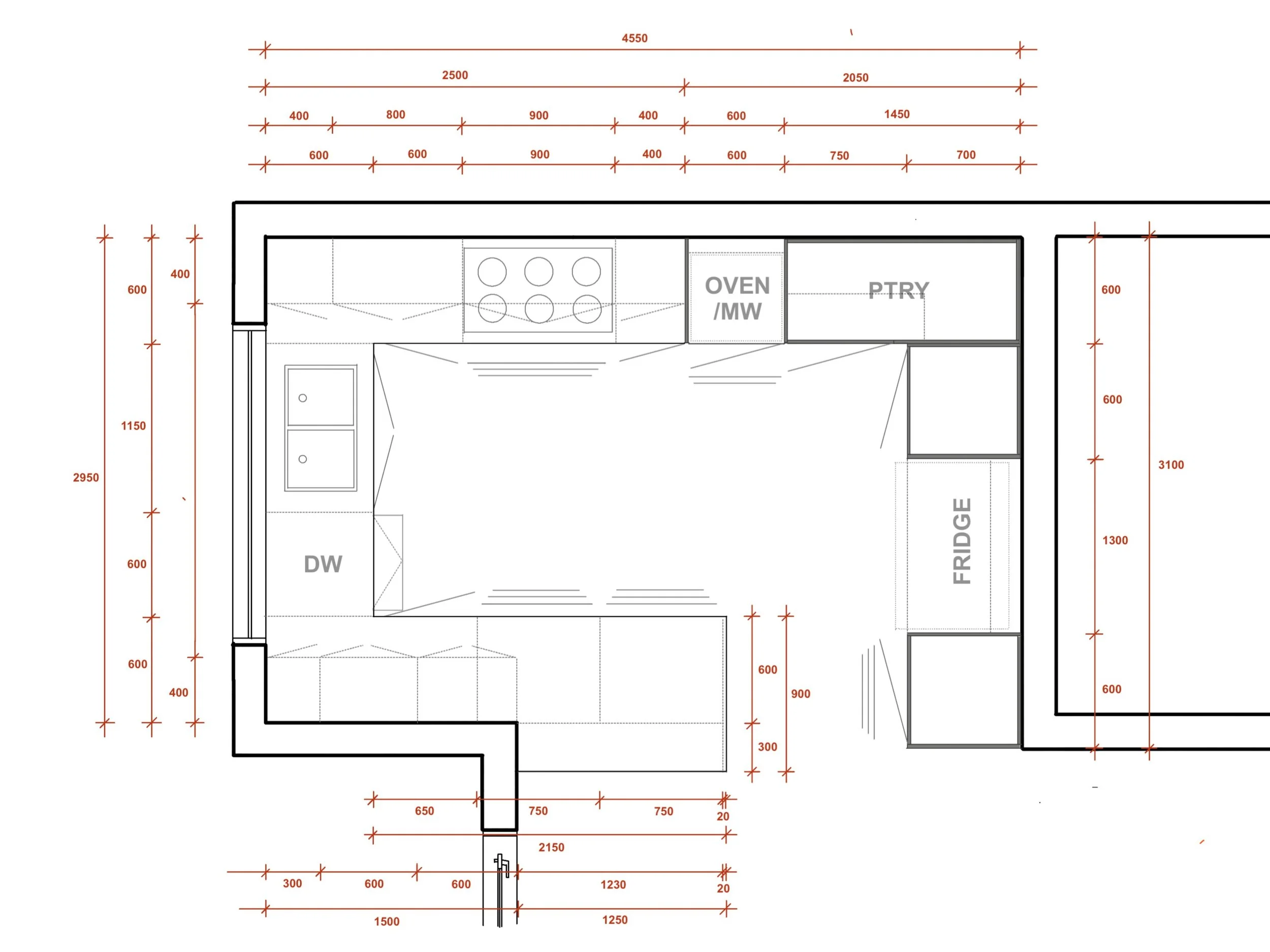
A small internal renovation including new kitchen layout, fixtures and cabinetry.
An increase in storage, modern appliances and future proofing were the aim. Project Underway Q1 2026.