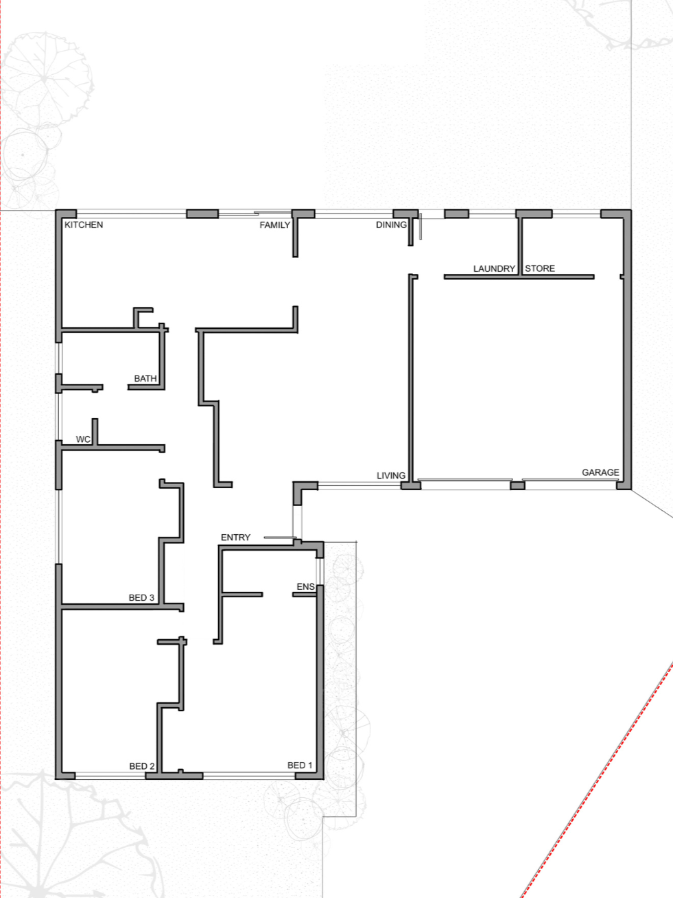
A perfect example of an outdated suited to a complete internal alteration without extensive additions or external changes.

Project aims included:

  • Simplifying the existing layout and corridors.

  • Opening up the kitchen and increasing storage.

  • Create a better indoor outdoor connection.

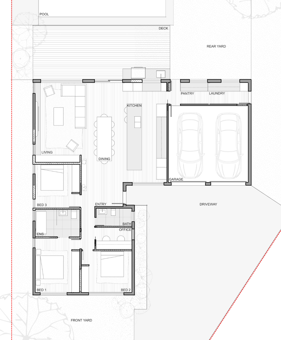
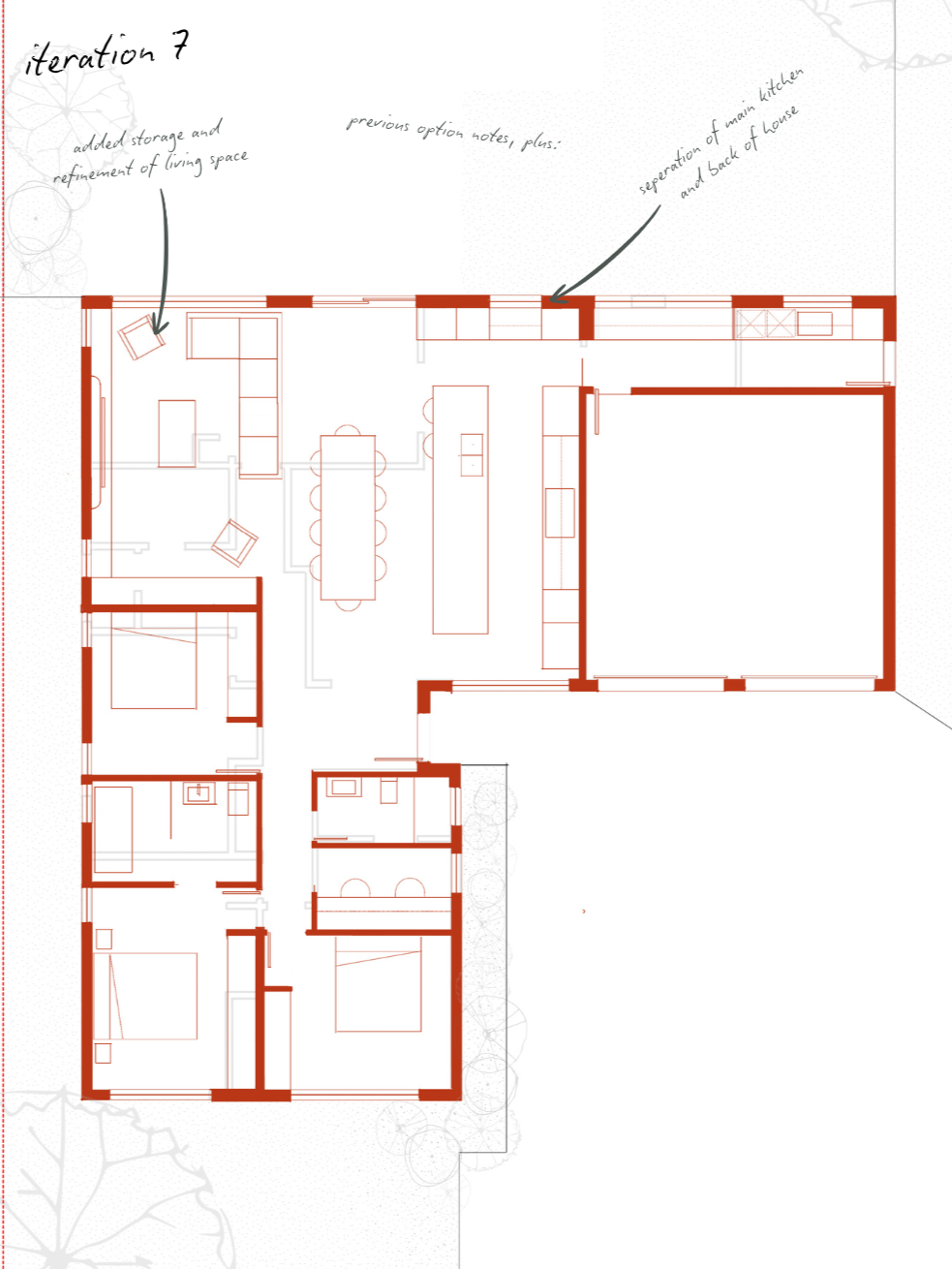
The project consisted of several iterations which tested, pushed and pulled the various layouts to best refine and consolidate space to suit the clients needs and brief.

With a strong brief and discussion, the process was iterative rather than option based, allowing us to quickly narrow down and focus on refining the layout. resulting in a great layout and use of the existing home.

DPI House

Previous
Previous

JTP House

Next
Next

RHP House