JTP House

A compact and spatially broken 1970s red brick home.

Project aims included:

  • Adding additional storage

  • Explore options for extension

  • Redesign of Kitchen - Living areas with the focus on open plan living and connection

The projects various options included two destinct routes which the client considered and ultimately selected.

  • Option 1: With minimal distruption to the external facade, this option largely adapts the existing layout to make considerably better use of its space and also achieve the main objectives.

  • Option 2: Extension of the existing home to the rear. This option presents a signifcantly larger scope of works however does provide a sizeable increase to the homes useable space with the additional also of a fourth bed.

This client initially selected option 2, however with further consideration of budget and intentions of remaining in the home, option 1 later reearthed as the favoured option and proceeded to CDC. Construction is now complete.

Existing Plan

Option 1

Option 2

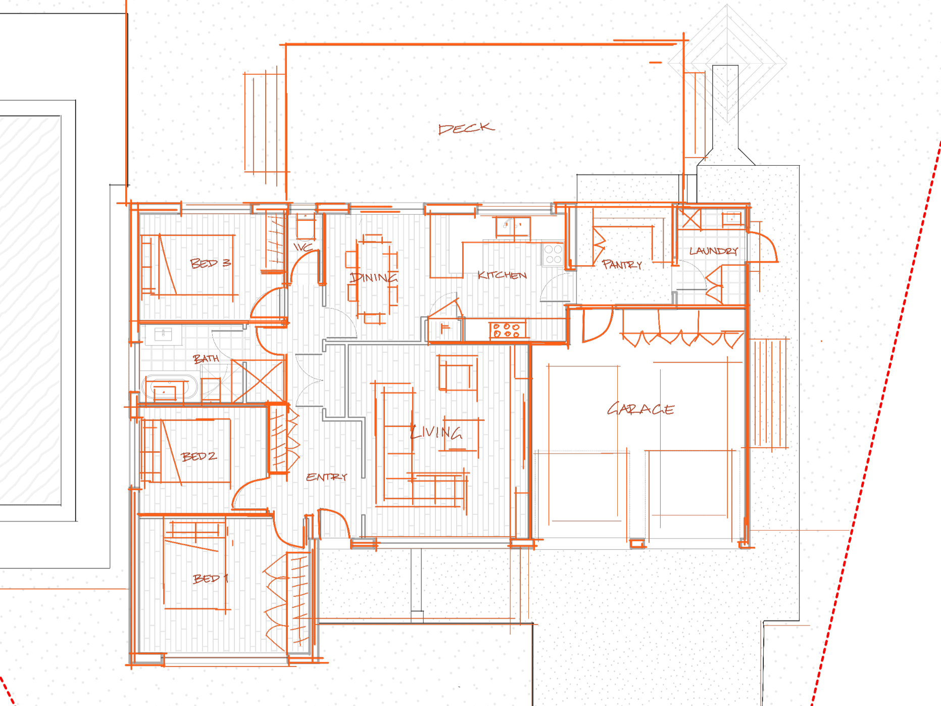
Final Plan

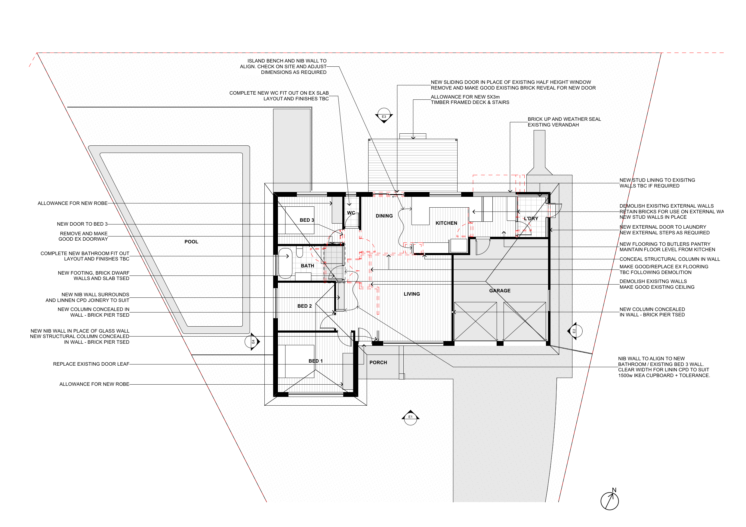
Demo Plan

Lighting & Electrical Plan

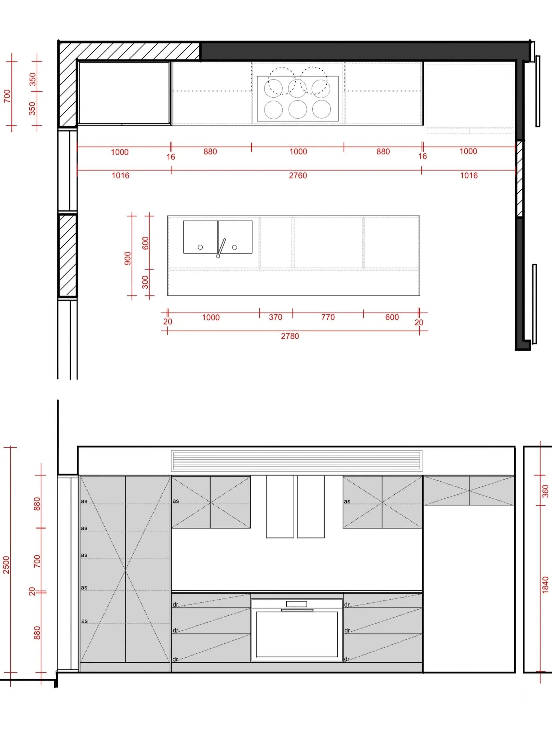
Kitchen Study - Example Elevation

CDC Documentation

Next
Next

RHP House